โครงการก่อสร้างอาคารศูนย์การแพทย์ธรรมศาสตร์ โรงพยาบาลธรรมศาสตร์เฉลิมพระเกียรติ โครงการก่อสร้างอาคารศูนย์การแพทย์ธรรมศาสตร์ โรงพยาบาลธรรมศาสตร์เฉลิมพระเกียรติ

Back to Top


ลักษณะโครงการ

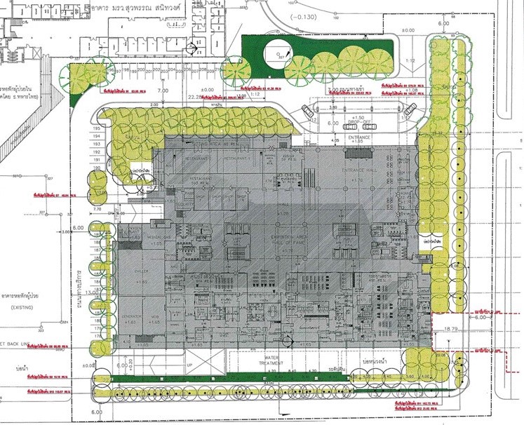
      โครงการก่อสร้างศูนย์การแพทย์ธรรมศาสตร์ ตั้งอยู่ในพื้นที่โรงพยาบาลธรรมศาสตร์เฉลิมพระเกียรติ ตำบลคลองหนึ่ง อำเภอคลองหลวง จังหวัดปทุมธานี บนเนื้อที่ประมาณ 9.5 ไร่ เป็นอาคารสูง 10 ชั้นและที่จอดรถใต้ดิน 1 ชั้น ที่จอดรถรวม 177 คันมีพื้นที่ใช้สอยรวม 53,965 ตร.ม. พร้อมงานปรับภูมิทัศน์พื้นที่ประมาณ 6,600 ตร.ม. เป็นอาคารที่มุ่งเน้นการให้บริการรักษาพยาบาลเป็นหลัก มีห้องตรวจรักษาผู้ป่วยนอก,คลีนิคเฉพาะทางห้องพักผู้ป่วยใน 150 ห้อง และส่วนบริการอื่นๆ





ทัศนียภาพโครงการภายนอก (ด้านข้าง)



ทัศนียภาพโครงการภายนอก (ด้านหลัง)



ผังบริเวณโครงการ



ผังบริเวณที่ตั้งโครงการ (แสดงเส้นทางเชื่อมต่อห้องผ่าตัด)


ชั้นใต้ดิน ประกอบด้วย
1. ที่จอดรถชั้นใต้ดิน ช่องจอด 177 คัน
2. ห้องสำนักงานช่างและซ่อมบำรุง/เก็บของ
3. ห้อง PUMP และ WATER TANK
4. WATER TREATMENT
5. ห้องเก็บขยะ
6. ทางสัญจร, โถงลิฟต์+บันได



ชั้น 1 ประกอบด้วย
1. ทางเข้าด้านหน้าอาคาร (DROP-OFF)
2. โถงทางเข้า ENTRANCE HALL
3. โถง HALL OF FAME
4. เวชระเบียนและสำนักงาน
5. ห้องเวรเปล
6. WASHING AREA (ล้างเตียง-รถเข็น)
7. ห้อง ADMIT
8. คลินิกกระดูกและข้อ
9. แผนกเจาะเลือดและเก็บสิ่งตรวจ
10. ศูนย์รังสีวินิจฉัย
11. ห้อง MEDICAL GAS และ OXYGEN PLANT
12. ร้านอาหาร (RESTAURANT) & ร้านค้า
13. GENERATOR / MDB / CHILLER / AHU









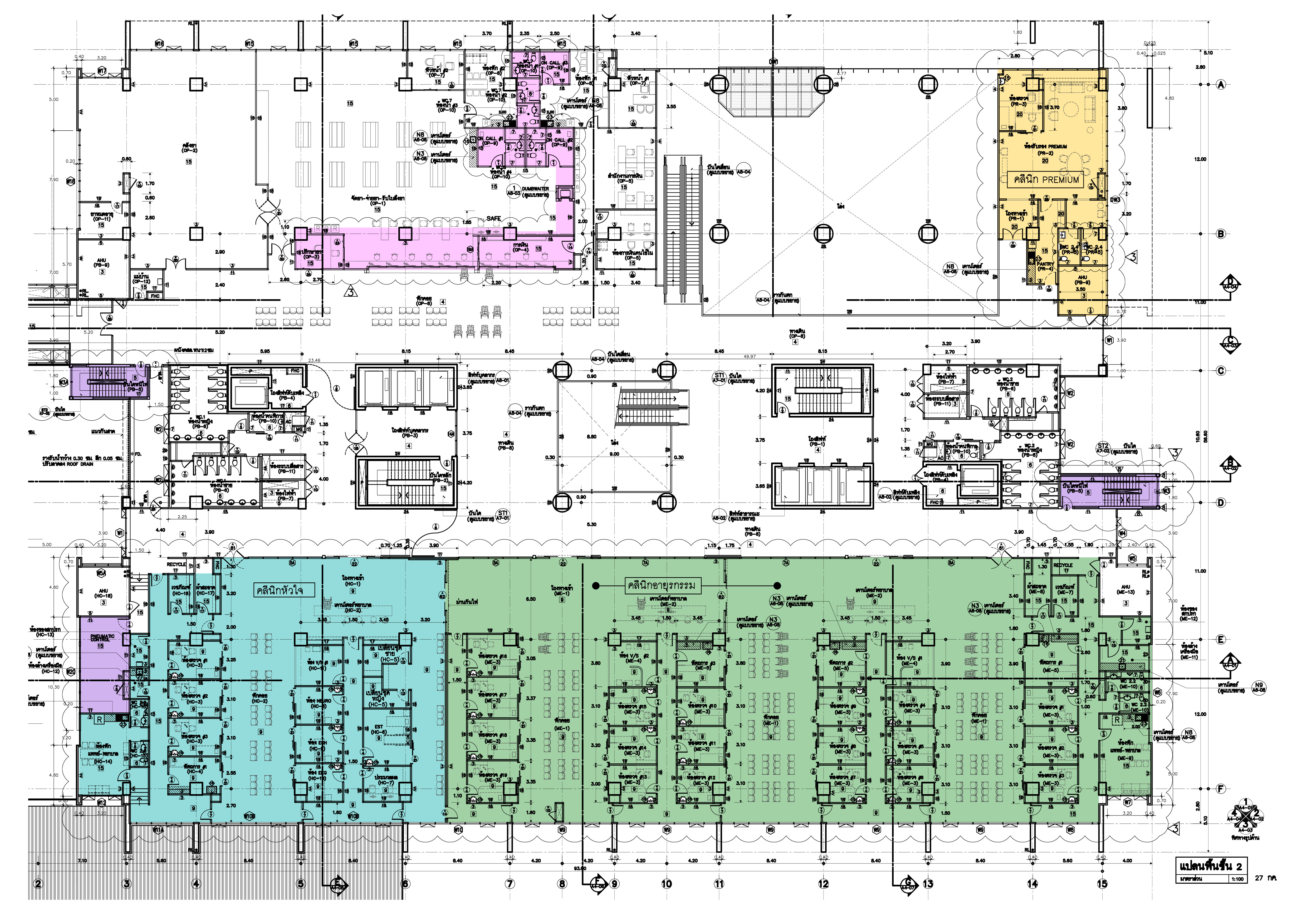
ชั้น 2 ประกอบด้วย
1. คลินิกพรีเมี่ยม
2. คลินิกอายุรกรรม,คลินิกหัวใจ
3. ห้องแผนกการเงิน – จ่ายยา/คลังยา
4. หน่วยเครื่องมือการแพทย์
5. ทางเดินเชื่อมกับอาคารเดิม







ชั้น 3 ประกอบด้วย
1. คลินิกหู คอ จมูก
2. คลินิกตา
3. คลินิกสูตินรีเวช
4. คลินิกกุมารเวช, ศูนย์สุขภาพเด็ก
5. ศูนย์สุขภาพจิต
6. แผนกการเงิน
7. แผนกจ่ายยา
8. ทางสัญจร,โถงลิฟต์,บันได ,บันไดเลื่อน
9. ห้อง AHU
10. ห้องน้ำสาธารณะ ชาย-หญิง-คนพิการ









ชั้น 4 ประกอบด้วย
1. ศูนย์ส่องกล้อง
2. ตรวจสุขภาพ
3. คลินิกทันตกรรม
4. คลินิกผิวหนัง
5. คลินิกศัลยกรรม
5. แผนกการเงิน
6. แผนกจ่ายยา
7. ทางสัญจร,โถงลิฟต์, บันได ,บันไดเลื่อน
8. ห้อง AHU
9. ห้องน้ำสาธารณะ ชาย -หญิง - คนพิการ





ชั้น 5 ประกอบด้วย
1. แผนก ICU A, ICU B และ ICU C
2. แผนกห้องผ่าตัด OR, Intervention และ Delivery
3. ศูนย์เครื่องมือแพทย์
4. ทางสัญจร,โถงลิฟต์, บันได ,บันไดเลื่อน
5. ห้อง AHU
6. ห้องน้ำสาธารณะ ชาย -หญิง - คนพิการ





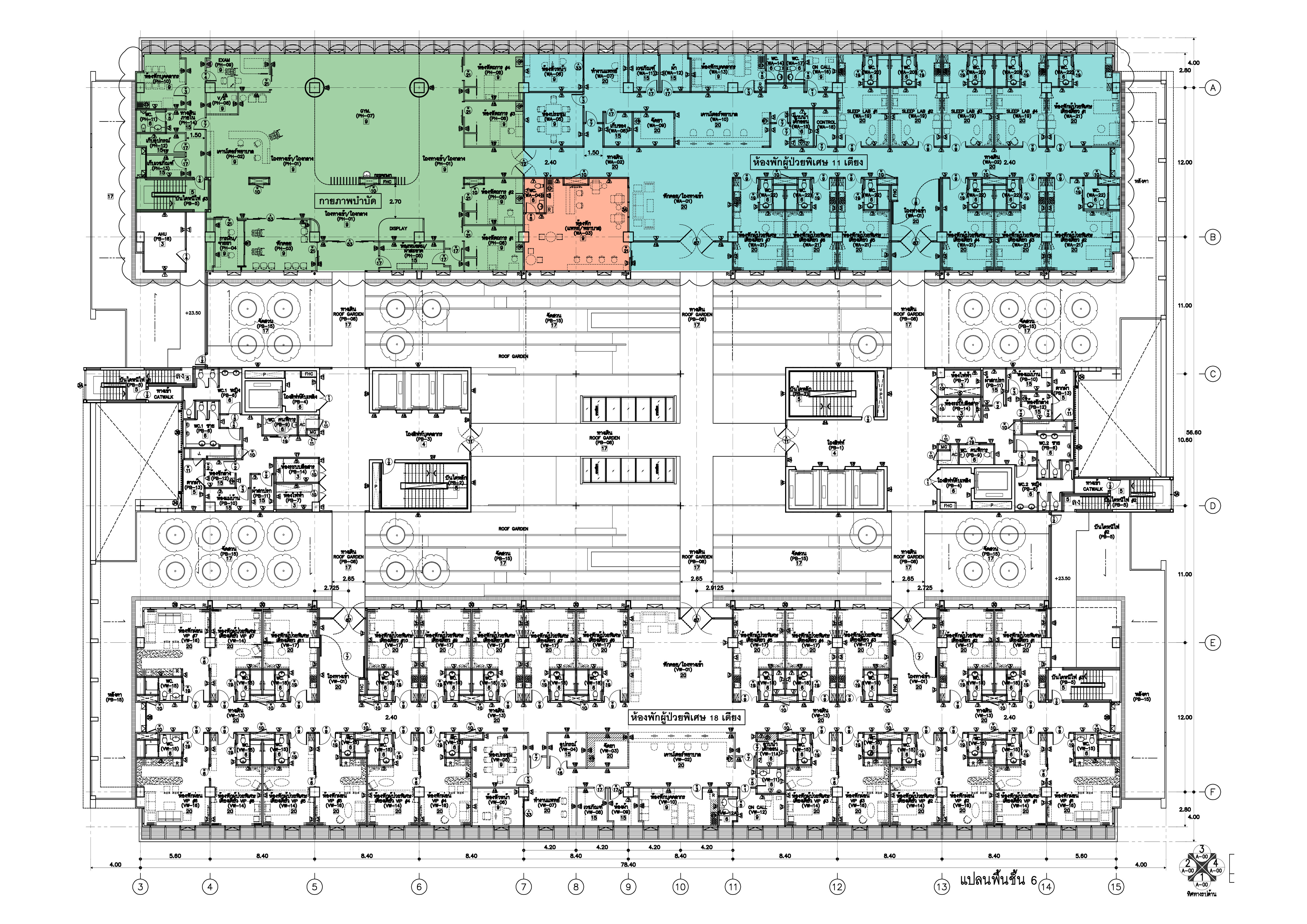
ชั้น 6 ประกอบด้วย
1. ห้องพักผู้ป่วย พิเศษ 18 ห้อง
2. แผนกกายภาพบำบัด
3. ห้องพักผู้ป่วยพิเศษ 11 เตียง (รวม Sleep Lab)
4. ทางสัญจร,โถงลิฟต์, บันได ,บันไดเลื่อน
5. ห้อง AHU
6. ห้องน้ำสาธารณะ ชาย -หญิง – คนพิการ
7. พื้นที่ Roof Garden และ Sky Light


ผังพื้นที่สีเขียวบริเวณชั้น 6 ของโครงการ

สวนหย่อม(Roof Garden) ชั้น 6 ที่พักตาพักใจของผู้ป่วย  ด้วยแนวคิดในการรักษาพยาบาลในปัจจุบัน จะให้ความสำคัญกับทุกองค์ประกอบ นอกเหนือจากร่างกายที่มีความเจ็บป่วยแล้ว ยังคำนึงถึง จิตใจ อารมณ์ สังคมรอบตัวผู้ป่วยด้วย ดังนั้นที่ชั้น 6 ของอาคารศูนย์การแพทย์ฯจึงได้ออกแบบสวนหย่อม (Roof Garden) ซึ่งห้องพักของผู้ป่วยที่ได้จัดให้สามารถมองเห็นจากหน้าต่างห้องพักให้ได้มากที่สุดและที่ชั้น 7-9 จะสามารถได้ชื่นชมกับสวนหย่อม ที่ตกแต่งด้วยไม้ดอกไม้ใบที่เหมาะกับการพักตาพักใจของผู้ป่วย ต้นไมม้ในสวนหย่อมได้รับการออกแบบและคัดเลือกพันธุ์ที่เหมาะสมกับโรงพยาบาลและสถานบริการเพื่อสุขภาพ













ชั้น 7-9 ประกอบด้วย
1. ห้องพักผู้ป่วยพิเศษชั้นละ 44 ห้อง (รวม 3 ชั้น 132 ห้อง)
2. NURSE STATION
3. ทางสัญจร, โถง ลิฟต์-บันได







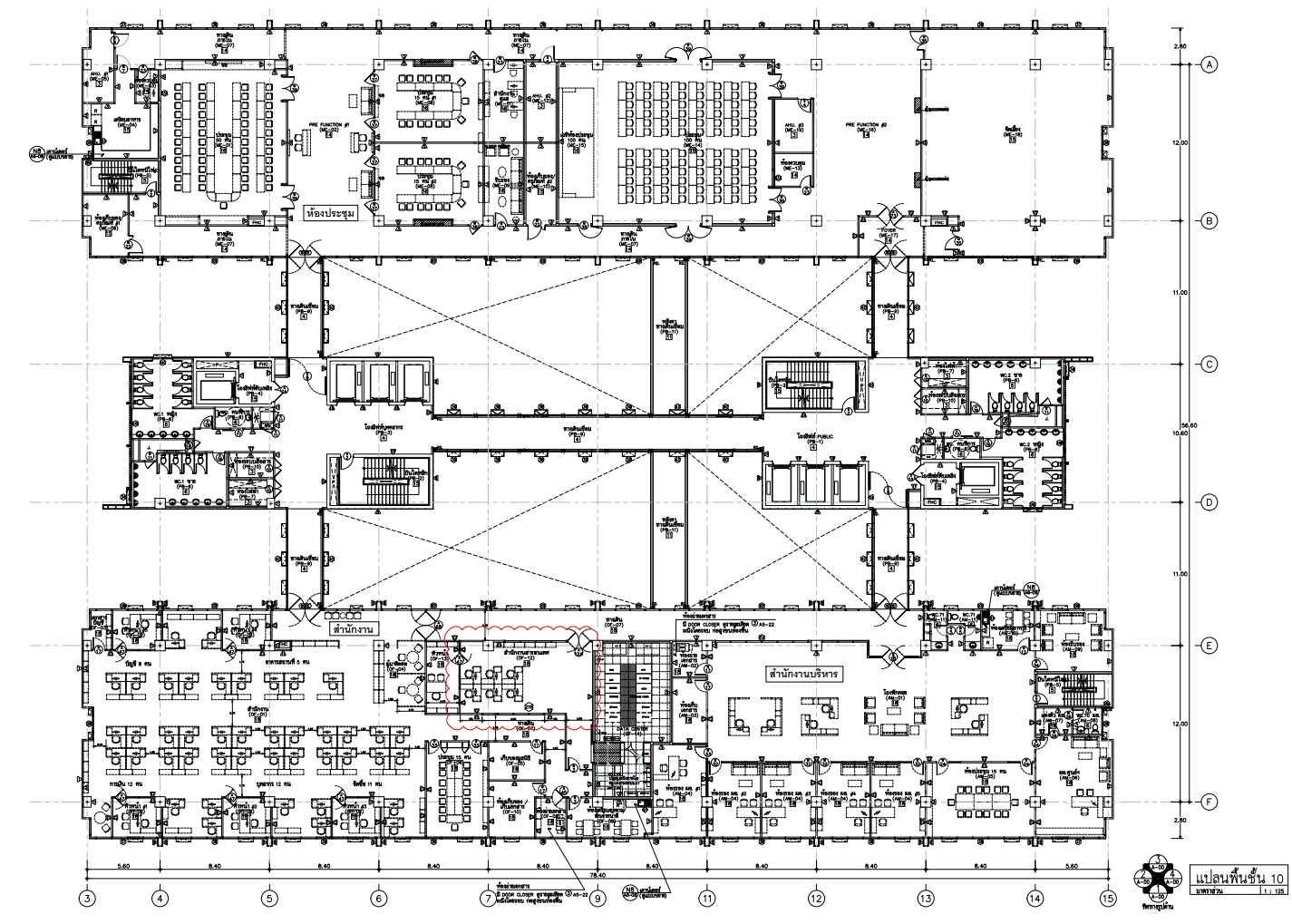
ชั้น 10 ประกอบด้วย
1. พื้นที่ประชุม
2. สำนักงานบริหาร
3. ทางสัญจร, โถง ลิฟต์-บันได
4. ห้องน้ำสาธารณะ ชาย-หญิง - คนพิการ















พื้นที่ใช้สอยโดยประมาณ
  - ชั้นใต้ดิน (B1) พื้นที่รวมประมาณ 6,214 ตร.ม.
  - ชั้นที่ 1 พื้นที่รวมประมาณ 5,620 ตร.ม.
  - ชั้นที่ 2 พื้นที่รวมประมาณ 4,294 ตร.ม.
  - ชั้นที่ 3 พื้นที่รวมประมาณ 4,962 ตร.ม.
  - ชั้นที่ 4 พื้นที่รวมประมาณ 4,991 ตร.ม.
  - ชั้นที่ 5 พื้นที่รวมประมาณ 4,975 ตร.ม.
  - ชั้นที่ 6 พื้นที่รวมประมาณ 5,084 ตร.ม.
  - ชั้นที่ 7 พื้นที่รวมประมาณ 3,479 ตร.ม.
  - ชั้นที่ 8 พื้นที่รวมประมาณ 3,479 ตร.ม.
  - ชั้นที่ 9 พื้นที่รวมประมาณ 3,479 ตร.ม.
  - ชั้นที่ 10 พื้นที่รวมประมาณ 3,449 ตร.ม.
  - ชั้นดาดฟ้า พื้นที่รวมประมาณ 3,398 ตร.ม.
  - TANK & LIFT MACHINE พื้นที่รวมประมาณ 541 ตร.ม.
รวมพื้นที่ในอาคาร 53,965 ตร.ม.
  - ทางเชื่อม, TREATMENT PLANT , บ่อหน่วงน้ำ 598 ตร.ม.
รวมพื้นที่ทั้งหมด 54,563 ตร.ม.

ประเภทหมวดงานต่าง ๆ ประกอบด้วย

1. หมวดงานวิศวกรรมโยธา
1.1. งานเสาเข็มและฐานราก ใช้เสาเข็มเจาะระบบเปียกมีขนาดเส้นผ่านศูนย์กลางประมาณ 0.80 –1.20 ม. โดยมีความลึก ของเสาเข็ม ประมาณ 44 ม.
1.2. งานโครงสร้างเสาเข็มระบบเปียก (WET PROCESS)
   - ใช้เสาเข็มเจาะระบบเปียกมีขนาดเส้นผ่านศูนย์กลางตั้งแต่ขนาด 0.80, 1.00 และขนาด 1.20 ม. จำนวน 33 ต้น 136 ต้น และ 108 ต้น ตามลำดับรวมจำนวนเสาเข็มเจาะระบบเปียกทั้งหมด จำนวน 277 ต้น โดยกำหนดความลึกที่ 44 เมตร และ รับน้ำหนักปลอดภัยไม่น้อยกว่า 300 ตัน/ต้น , 400 ตันต่อต้น และ 500 ตันต่อต้น ตามข้อกำหนดในรูปแบบก่อสร้างของโครงการ
   - กำหนดทดสอบการรับน้ำหนักของเสาเข็มด้วยวิธี STATIC LOAD TEST จำนวน 1 ต้น และ กำหนดให้ทำการทดสอบ SESIMIC TEST เพื่อตรวจสอบค่าความสมบูรณ์ของเสาเข็มทั้งหมด รวม 277 ต้น ตามข้อกำหนดในสัญญา
1.3. งานก่อสร้างระบบป้องกันดินพัง โครงสร้างชั้นใต้ดิน
   ระบบโครงสร้างป้องกันดิน สำหรับงานฐานราก และ งานโครงสร้างใต้ดิน โดยใช้โครงสร้างกันดิน แบบ STEEL SHEET PILE ระบบโครงสร้างป้องกันดิน BRACING โดยใช้โครงสร้างกันดินแบบ STEEL SHEET PILE ชีทไพล์ คือระบบโครงสร้าง ที่สามารถป้องกันแรงดันน้ำ แรงดันดิน แรงดันอื่น ๆ ที่ทำให้เกิดการเคลื่อนตัว ของสิ่งก่อสร้างโดยต้องมีเสถียรภาพ ทั้งระบบโครงสร้างชนิดนี้ มีประโยชน์สำหรับงานก่อสร้างที่ต้องป้องกันดินระหว่างการก่อสร้าง
1.4. งานโครงสร้างฐานราก เลือกใช้โครงสร้างคอนกรีตเสริมเหล็กเป็นหลัก โดยจะใช้โครงสร้างเหล็กสำหรับบางช่วงของอาคาร ดังนี้
   เสา       คอนกรีตเสริมเหล็ก ชนิดหล่อในที่ ขนาดประมาณ 1.00X1.00
   ผนังรับแรงเฉือน คอนกรีตเสริมเหล็ก ชนิดหล่อในที่ ความหนา 0.20-0.35 เมตร
   ชั้นใต้ดิน     ระบบ RC FLAT SLAB ความหนา ประมาณ 30 ซม.
   ชั้นล่าง     ระบบ RC FLAT SLAB ความหนา ประมาณ 30 ซม.
   ชั้น 2 - ชั้น10  ระบบ POST TENSION SLAB ความหนา ประมาณ 25 ซม.

2. หมวดงานสถาปัตยกรรม
  เป็นอาคารสูง 10 และที่จอดรถใต้ดิน 1 ชั้น จอดรถรวม 177 คัน ตัวอาคารสูง 51.30 เมตร อาคารแบ่งเป็นพื้นที่ใช้สอยภายในประมาณ 53,965 ตรม. พร้อมงานปรับภูมิทัศน์ สวนหย่อม (ROOF GARDEN) ชั้น 6 พื้นที่ประมาณ 6,600 ตรม. ซึ่งได้รับการออกแบบและคัดเลือกพันธุ์ไม้ที่เหมาะกับโรงพยาบาลและสถานบริการสุขภาพ
  2.1. หมวดงานพื้น ประกอบด้วย พื้น คสล. ผิวขัดเรียบ, พื้น คสล. ผิวขัดหยาบ, พื้น คสล. ทำผิวขัดมัน, พื้น คสล. ทำผิวขัดเรียบทำระบบกันซึม, พื้นปูกระเบื้องยาง, พื้นปูกระเบื้องยางชนิดกันไฟฟ้าสถิตและกันแบคทีเรีย, พื้นปูกระเบื้องเซรามิก แกรนิตโต้, พื้น FLOOR BUILT UP, พื้น FLOOR HARDENER เป็นต้น
  2.2. หมวดงานผนัง ประกอบด้วย ผนังคอนกรีตสำเร็จรูปทาสีพลาสติก, ผนังก่ออิฐมวลเบาทาสีพลาสติกชนิดกัน Bacterla, ผนังก่ออิฐมวลเบาฉาบปูนเรียบ, ผนังบุกระเบื้องเซรามิก แกรนิตโต้, ผนังกรุ ALUMINIUM COMPOSITE, ผนัง คสล. เปลือยแต่งผิวเรียบ, ผนังก่ออิฐมวลเบาทาสี EPOXY, ผนังกรุแผ่นสมาร์ทบอร์ดปิดทับด้วยลามิเนต, ผนังยิปซั่มบอร์ดทาสี ANTI BACTERIA, ผนังระแนงไม้, ผนังกรุทับกระจกสกรีนลายหรือโค๊ทลาย เป็นต้น
  2.3. หมวดงานฝ้าเพดาน ประกอบด้วย ฝ้าเพดาน คสล. แต่งผิวเรียบ, ฝ้าเพดานยิปซั่มบอร์ด, เรียบทาสี, ฝ้าเพดาน FIBER CEMENT, ฝ้าเพดาน SMART BOARD กรุลามิเนต, ฝ้าเพดาน ALUMINIUM COMPOSITE เป็นต้น
  2.4. หมวดงานสุขภัณฑ์ ประกอบด้วย โถส้วมชักโครกแบบหม้อน้ำ, โถส้วมชักโครกแบบฟลัชวาส์ว, อ่างล้างหน้าแบบฝังเคาน์เตอร์, โถปัสสาวะชายแบบ FLUSH VALVE, ก๊อกน้ำแบบติดผนัง สำหรับล้างพื้นใต้เคาน์เตอร์, ฝักบัวพร้อมก็อกฝักอาบน้ำ, กระจกเงาพร้อมชั้นวางของ, STOP VALVE
  2.5. หมวดงานประตูหน้าต่าง ประกอบด้วย งานประตูไม้, งานประตูเหล็ก, งานประตูอลูมิเนียม, งานหน้าต่างอลูมิเนียม, งานกระจกลามิเนต, กระจกนิรภัย

3. หมวดงานระบบไฟฟ้า
3.1. ไฟฟ้าแรงสูง รับไฟฟ้าแรงสูงขนาด 22 KV. จากสายป้อนอากาศ (OVERHEAD LINE) ภายในโครงการ โดย ได้จัดเตรียมอุปกรณ์ ดังนี้
   - ปักเสาพาดสายอลูมิเนียมหุ้มฉนวนเชื่อมต่อกับสายไฟเดิมที่อาคารข้างเคียง
   - หม้อแปลงไฟฟ้า (TRANSFORMER) ชนิด OIL TYPE ขนาด 2,000 KVA จำนวน 3 ชุด ชนิดตั้งบนพื้นล้อมรั้ว อยู่บริเวณดาดฟ้า ชั้น 2 ของอาคาร
3.2. ระบบไฟฟ้าแรงต่ำ จ่ายรวมจากจุดศูนย์กลางห้องควบคุมภายในอาคาร (CENTRAL SUPPLY) เพื่อสะดวกในการควบคุม ตรวจสอบ บำรุงรักษา ประกอบด้วยอุปกรณ์หลัก ดังนี้
   - ตู้ประธานไฟฟ้าแรงต่ำ
   - ตู้ไฟฟ้าย่อยประจำชั้น / หรือพื้นที่
   - ระบบไฟฟ้าฉุกเฉิน
   ระบบไฟฟ้าสำรองฉุกเฉินโครงการนี้จะเป็นแบ่งเป็น 2 ระบบ คือ
    ก. เครื่องกำเนิดไฟฟ้าสำรอง (GENERATOR) ขนาด 1,000 KVA จำนวน 2 ชุด ใช้น้ำมันดีเซลเป็นเชื้อเพลิง
    ข. ระบบไฟฟ้าสำรองต่อเนื่อง เพื่อจ่ายกระแสไฟฟ้าต่อเนื่องให้กับอุปกรณ์ระบบเครือข่ายสื่อสารและคอมพิวเตอร์ โดยจ่ายไฟต่อเนื่องได้เป็นระยะเวลาไม่น้อยกว่า 15 นาที
3.3. ระบบการเดินสายไฟฟ้า สายไฟฟ้าที่เดินภายในโครงการ เป็นระบบเดินร้อยอยู่ภายในท่อ (CONDUIT) หรือบัสเวย์ (BUSWAY)
3.4. ไฟฟ้าแสงสว่าง ใช้หลอด LED จึงทำให้ค่าพลังงานตามเกณฑ์อาคารที่กำหนดไว้ไม่เกิน 12 W/SQ.M. อยู่ที่ W/SQ.M.วงจรควบคุมแสงสว่าง จะควบคุมไม่เกิน 250 ตรม./1วงจร
3.5. ระบบสายดิน จัดให้มีระบบสายดินสำหรับวงจรไฟฟ้าอย่างสมบูรณ์เพื่อป้องกันชีวิตและทรัพย์สินจากไฟฟ้ารั่วสำหรับวงจรปลั๊กไฟฟ้าและอุปกรณ์ไฟฟ้าทั้งหมดในอาคาร
3.6. ระบบไฟฟ้าแสงสว่างฉุกเฉินและไฟแสดงทางออกฉุกเฉิน มีชุดไฟฟ้าแสงสว่างและป้ายแสดงทางออกฉุกเฉินชนิดใช้แบตเตอรี่ในบริเวณโถงบันไดและทางออกที่จัดให้เป็นทางออกฉุกเฉิน โดยจะสว่างทันทีที่ไฟฟ้าแสงสว่างขัดข้องและมีแสงสว่างตลอดเวลาสำหรับป้ายแสดงทางออกฉุกเฉิน
3.7. ระบบสื่อสารและระบบแจ้งเหตุเพลิงไหม้
   3.7.1. ระบบโทรศัพท์อัตโนมัติ (IP PHONE)
     - จัดเตรียมข่ายสายโทรศัพท์ (LAN)ภายในอาคาร โดยเริ่มจากตู้ COMPUTER RACK ภายในห้อง ระบบสื่อสารประจำชั้น กระจายไปยังแผนกและสำนักงานทุกชั้น ครอบคลุมทุกพื้นที่ใช้งาน โดยจัดเตรียมข่ายเมน UP LINK เป็น FIBER OPTIC จากตู้ COMPUTER RACK ประจำชั้นทุกชั้น เชื่อมต่อไปยังจุดรวมสายที่ห้อง SERVER ชั้นที่ 10
     - จัดเตรียม RACK รวมสายสัญญาณสำหรับระบบโทรศัพท์และระบบคอมพิวเตอร์ โดยใช้ RACK ร่วมกันเพื่อให้ ง่ายต่อการบำรุงรักษา
   3.7.2. ระบบคอมพิวเตอร์
     - ติดตั้งเต้ารับคอมพิวเตอร์และข่ายสายในแต่ละสำนักงานทุกชั้น ครอบคลุมทุกแผนกที่ต้องการโดยเดินสาย มารวมไว้ที่จุดรวมสายประจำชั้นหรือโซน และจัดเตรียมข่ายสายเมน UP LINK จากจุดรวมสายประจำชั้นหรือโซนไปยังห้อง SERVER ที่ชั้น 10 แผนกศูนย์คอมพิวเตอร์ เพื่อรองรับระบบ HIS, INTERNET และรองรับการใช้งาน VIDEO STREAMING ของการถ่ายทอดภาพการผ่าตัดหรือการทำ SCOPE
     - ดเตรียมข่ายสายสัญญาณระบบคอมพิวเตอร์โดยเชื่อมต่อโครงข่ายให้สามารถอ่อนตัวต่อการปรับปรุงการใช้งานในอนาคตและสลับเปลี่ยนอุปกรณ์ได้สะดวก และพร้อมเชื่อมต่อสายสัญญาณสาภายนอกอาคารได้ที่ห้อง SERVER ศูนย์คอมพิวเตอร์ชั้น 10
     - จัดเตรียมสายสัญญาณสำหรับติดตั้ง WIRELESS ACCESS POINT ในอนาคต ครอบคลุมทั้งอาคาร
     - จัดเตรียมสายเมน FIBER OPTIC จากห้อง SERVER ชั้นที่10 เชื่อมต่อไปยัง ห้องDATA CENTER ชั้นที่ 2 ของอาคารอดุลโสภาคย์ และห้อง DATA CENTER ชั้นที่3 ของอาคารกิตติวัฒนา
   3.7.3. ระบบโทรทัศน์รวม จัดให้มีระบบโทรทัศน์รวมเป็นระบบดิจิตอล สำหรับรับชมสัญญาณภาพโทรทัศน์ในทั้งช่องสัญญาณภายในประเทศ, ต่างประเทศ ด้วยระบบจานรับสัญญาณดาวเทียม โดยกระจายสัญญาณไปตามเตารับในจุดต่าง ๆ มีระดับความแรงของสัญญาณในแต่ละจุดที่ได้มาตรฐาน ครอบคลุมพื้นที่บริการและครอบคลุมทุกแผนกที่ต้องการ รองรับการขยายและการต่อเชื่อมอุปกรณ์เพิ่มช่องสัญญาณได้ในอนาคต
   3.7.4. ระบบเสียงประกาศ
     - ระบบเสียงจัดให้มีเครื่องเสียงครบชุดทั้ง CD, TAPE และ TUNER ที่ชุดควบคุมส่วนกลาง ที่ห้อง OPERATOR หรือ ประชาสัมพันธ์
     - การจัด ZONE ลำโพง จะจัดแบ่งให้เหมาะสมตามสภาพของอาคาร โดยมี VOLUME ปรับความดังได้อิสระและปิดเสียงได้
     - ในกรณีมีเหตุฉุกเฉิน ชุดควบคุมส่วนกลางสามารถควบคุมให้ลำโพงทุกจุดเปิด VOLUME (ไม่ว่าจะปิดหรือไม่ก็ตาม) และกระจายเสียงจากส่วนกลางได้
     - สามารถกระจายเสียงไปยังส่วนอาคารต่าง ๆ ได้อย่างทั่วถึง
     - ระบบเสียงโซนย่อย ในคลินิกหรือแผนกต่าง ๆ ที่จำเป็นต้องใช้ประกาศอิสระ
   3.7.5. ระบบเสียงและภาพ (โสตทัศนูปกรณ์)
     - ระบบเสียง-ภาพ ยังประกอบไปด้วยการถ่ายทอดภาพและเสียงจากห้องผ่าตัดต่าง ๆ ไปแสดงยังห้องประชุมได้อีกด้วย
   3.7.6. ระบบแจ้งเหตุเพลิงไหม้
     - อุปกรณ์ FIRE ALARM CONTROL PANEL จะเป็นชนิด MICROPROCESSOR MULTIPLEX SYSTEM ตั้งอยู่ภายในห้องควบคุมอาคาร
     - มีชุด MODULE เพื่อแปลงสัญญาณ MULTIPLEX เพื่อกระจายสัญญาณไปใช้ร่วมกับอุปกรณ์ DETECTOR ชนิด SMOKE และ HEAT แบบ CONVENTIONAL TYPE ได้ตามความเหมาะสมของพื้นที่ใช้งาน พร้อมทั้งอุปกรณ์ ALARM BELL, MANUAL STATION และ FIRE TELEPHONE สำหรับติดต่อกับห้องควบคุม
     - ระบบแจ้งเหตุเพลิงไหม้เชื่อมต่อกับระบบควบคุมอาคาร (BAS) เพื่อทำการจัดการระบบให้สอดคล้องกัน ในกรณีฉุกเฉิน
   3.7.7. ระบบรักษาและบริหารจัดการในด้านความปลอดภัย (SECURITY MANAGEMENT SYSTEM)
     - ระบบ ACCESS CONTROL สามารถรองรับการใช้งานร่วมกับ TECHNOLOGY ของอุปกรณ์ STANDARD READER ทั่วไปได้ เช่น SMART CARD READER, BIOMATRIC READER ( FINGER SCAN ETC.) , PROXIMITY CARD READER
     - ระบบกล้องโทรทัศน์ CCTV กล้องจะเป็นชนิด DIGITAL IP CAMERA หรือ CCTV CAMERA ที่ผ่านอุปกรณ์ IP ENCORDER สามารถดูแล สั่งการได้จาก WORKSTATION ในห้องควบคุมอาคาร



4. หมวดงานระบบปรับอากาศและระบายอากาศ
4.1. ระบบผลิตน้ำเย็น WATER-COOLED CHILLER มีทั้งหมด 4 ชุด (3 ชุด เป็นแบบ CENTRIFUGAL ระบายความร้อนด้วยน้ำ ความเร็วรอบคงที่ ขนาด 500 TR มีประสิทธิภาพ 0.60 KW/TR และ 1 ชุด เป็นแบบ MAGNETICBEARING CENTRIFUGAL CHILLER ระบายความร้อนด้วยน้ำ ความเร็วรอบไม่คงที่ ขนาด 500 TR มีประสิทธิภาพ 0.59 KW/TR ซึ่งทั้งหมด มีประสิทธิภาพการผลิตน้ำเย็น ดีกว่า พ.ร.บ. อนุรักษ์พลังงาน ที่กำหนดไว้ 0.62 KW/TR
4.2. ท่อน้ำเย็น เพื่อลดการเป็นสนิม จึงกำหนดใช้เป็นท่อ PPR 80 ในช่วงวาล์วประจำชั้น ถึงวาล์วประจำเครื่อง
4.3. BALANCING VALVE กำหนดใช้เป็น AUTOMATIC BALANCING VALVE เพื่อลดขั้นตอนการปรับ BALANCE น้ำ
4.4. COOLING TOWER กำหนดใช้ COUNTERFLOW, INDUCED DRAFT อัตราการสูญเสียละอองน้ำที่ถูกพาไป โดยกระแสลมระบายความร้อนขาออก (DRIFT RATE) ไม่สูงกว่าร้อยละ 0.001 ของอัตราน้ำคอนเดนเซอร์หมุนเวียน

5. หมวดงานระบบสุขาภิบาลและดับเพลิง
5.1. ระบบสุขาภิบาล
   - ระบบน้ำประปา ถังเก็บน้ำใต้ดินขนาด 736.16 ลบ.ม. และ ถังเก็บน้ำดาดฟ้าขนาด 197.44 ลบ.ม.
   - ระบบบำบัดน้ำเสียและการระบายน้ำเสีย ถังบำบัดน้ำเสียรวม ขนาด 245.18 ลบ.ม./วัน
   - ระบบระบายน้ำฝน
   - ต่อท่อน้ำฝนเข้าระบบระบายน้ำรวม ที่มีบ่อหน่วงน้ำ ขนาด 342 ลบ.ม. บริเวณด้านข้างอาคาร
   - ระบบการจัดเก็บและทำลายขยะ โดยขยะภายในโรงพยาบาลทั้งหมด แบ่งเป็น ขยะเปียก ขยะแห้ง และขยะมีพิษ ซึ่งใช้วิธีกำจัดโดยให้หน่วยงานเทศบาล หรือหน่วยงานอื่น ๆ ขนออกไปกำจัดยังภายนอกโครงการ
5.2. ระบบดับเพลิง
   - ระบบดับเพลิงด้วยสายฉีดน้ำ (FIRE HOSE) รัศมี 30 เมตร ครอบคลุมทั่วบริเวณภายในอาคาร
   - ระบบดับเพลิงด้วยหัวโปรยน้ำอัตโนมัติ (SPRINKLER SYSTEM) เป็นระบบโปรยน้ำดับเพลิงอัตโนมัติที่รับน้ำจากเครื่องสูบน้ำดับเพลิง โดยติดตั้งหัวโปรยน้ำ (SPRINKLER HEAD) ทั่วทุกพื้นที่ของอาคาร มีรัศมีการติดตั้งไม่เกิน 15 ตารางเมตรต่อหัว
   - ระบบดับเพลิงเคมีหรือก๊าซเป็นชนิดถังดับเพลิงติดตั้งประจำตู้เก็บอุปกรณ์สายฉีด (FHC)    - ระบบป้องกันไฟลาม เป็นระบบป้องกันไฟและควันลามไปตามช่องเปิด ช่องเดินท่อต่าง ๆ ที่พื้นและผนัง โดยวัสดุที่ใช้จะต้องมีคุณสมบัติอัตราทนไฟได้ ไม่ต่ำกว่า 2 ชั่วโมง ตามมาตรฐาน NEC หรือ ASTM หรือ BS



6. หมวดงานระบบขนส่งแนวดิ่ง
6.1. ลิฟต์โดยสาร
   - ลิฟต์พยาบาล 3 ชุด บรรทุกสุทธิไม่น้อยกว่า 1,000 กิโลกรัม ชนิดมีห้องเครื่องลิฟต์ ที่ความเร็วไม่ต่ำกว่า 105 เมตร/นาที เปิด-ปิด 11 ชั้น
   - ลิฟต์พนักงาน 3 ชุด บรรทุกสุทธิไม่น้อยกว่า 1,000 กิโลกรัม ชนิดมีห้องเครื่องลิฟต์ ที่ความเร็วไม่ต่ำกว่า 105 เมตร/นาที เปิด-ปิด 11 ชั้น
   - ลิฟต์ดับเพลิง 2 ชุด บรรทุกสุทธิไม่น้อยกว่า 1,000 กิโลกรัม ชนิดมีห้องเครื่องลิฟต์ ที่ความเร็วไม่ต่ำกว่า 105 เมตร/นาที เปิด-ปิด 12 ชั้น
   - ลิฟต์ส่งของ 1 ชุด สำหรับ จัด-จ่ายยา ขนาดบรรทุก 100 KG. ที่ความเร็วไม่ต่ำกว่า 30 เมตร/นาที เปิด-ปิด 2 ชั้น
6.2. บันไดเลื่อน
   - มีบันไดเลื่อนในชั้น G และชั้น 2 รวมทั้งหมด 4 ชุด กำหนดความเร็วที่ 30 เมตรต่อนาที

7. ระบบจ่ายแก๊สทางการแพทย์
7.1. ระบบก๊าซออกซิเจน
   แหล่งจ่ายหลัก : LIQUID OXYGEN TANK (เดิม) บริเวณด้านหลังอาคารกิตติ
   แหล่งจ่ายสำรอง : 12 X 2 CYLENDERS, OXYGEN MANIFOLD ติดตั้งในห้อง GAS MANIFOLD
7.2. ระบบอากาศอัดทางการแพทย์และระบบอากาศอัดแรงดันสูง
   แหล่งจ่ายหลัก : เครื่องผลิตอากาศอัดทางการแพทย์ 50 SCFM.
   DUPLEX OIL-LESS SCROLL
   RECEIVER TANK 240 GALLONS
7.3. ระบบสุญญากาศ
   แหล่งจ่ายหลัก : เครื่องผลิตสุญญากาศ 54 SCFM.
   DUPLEX OIL-LESS ROTARY
   RECEIVER TANK 240 GALLONS